Dodaj produkty podając kody
Dodaj plik CSV
Wpisz kody produktów, które chcesz zbiorczo dodać do koszyka (po przecinku, ze spacją lub od nowej linijki).
Powtórzenie wielokrotnie kodu, doda ten towar tyle razy ile razy występuje.
Konkretne i proste wzornictwo, płaskie wykonanie, duża moc i dowolność pod względem proporcji i wymiarów.
Wyjątkowa technika zaworowa Kermi dająca odczuwalną oszczędność energii. Estetyczny wygląd, skrócony czas montażu i prosta instalacja.
Dyskretne, estetyczne i funkcjonalne rozwiązanie koncepcji architektonicznej.
Pionowe, smukłe wykonanie – estetycznie wykończone za pomocą standardowo montowanej bocznej osłony lub idealne dostosowanie w wersji poziomej – z elegancką osłoną lub bez.
Marka
Symbol
29HHV210355402R3K
Seria
Rodzaj towaru
Grzejniki stalowe płytowe
EAN
4051487136283
Kod producenta
HHV210355402R3K
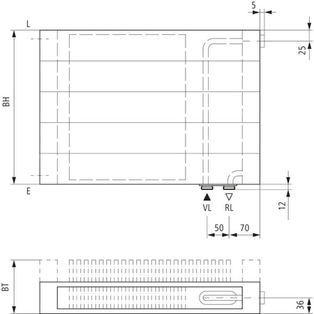
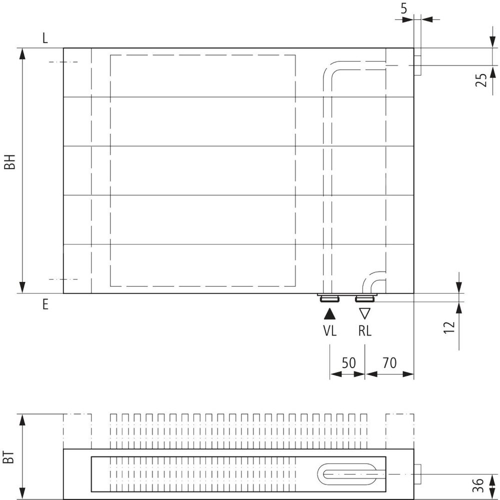
Wysokość [mm]
350
Głębokość [mm]
72
Długość [mm]
5400
Moc cieplna EN 442 20°C - 75/65 [W]
4579
Rodzaj
21
Kolor
Biały
Długość towaru w centymetrach
550
Wysokość towaru w centymetrach
37.5
Szerokość towaru w centymetrach
9.2
Strona www producenta
www.kermi.pl
Zapytaj o produkt




















