Dodaj produkty podając kody
Dodaj plik CSV
Wpisz kody produktów, które chcesz zbiorczo dodać do koszyka (po przecinku, ze spacją lub od nowej linijki).
Powtórzenie wielokrotnie kodu, doda ten towar tyle razy ile razy występuje.
Konkretne i proste wzornictwo, płaskie wykonanie, duża moc i dowolność pod względem proporcji i wymiarów.
Wyjątkowa technika zaworowa Kermi dająca odczuwalną oszczędność energii. Estetyczny wygląd, skrócony czas montażu i prosta instalacja.
Dyskretne, estetyczne i funkcjonalne rozwiązanie koncepcji architektonicznej.
Pionowe, smukłe wykonanie – estetycznie wykończone za pomocą standardowo montowanej bocznej osłony lub idealne dostosowanie w wersji poziomej – z elegancką osłoną lub bez.
Marka
Symbol
29HHV200424602R1K
Seria
Rodzaj towaru
Grzejniki stalowe płytowe
EAN
4051487127168
Kod producenta
HHV200424602R1K
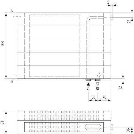
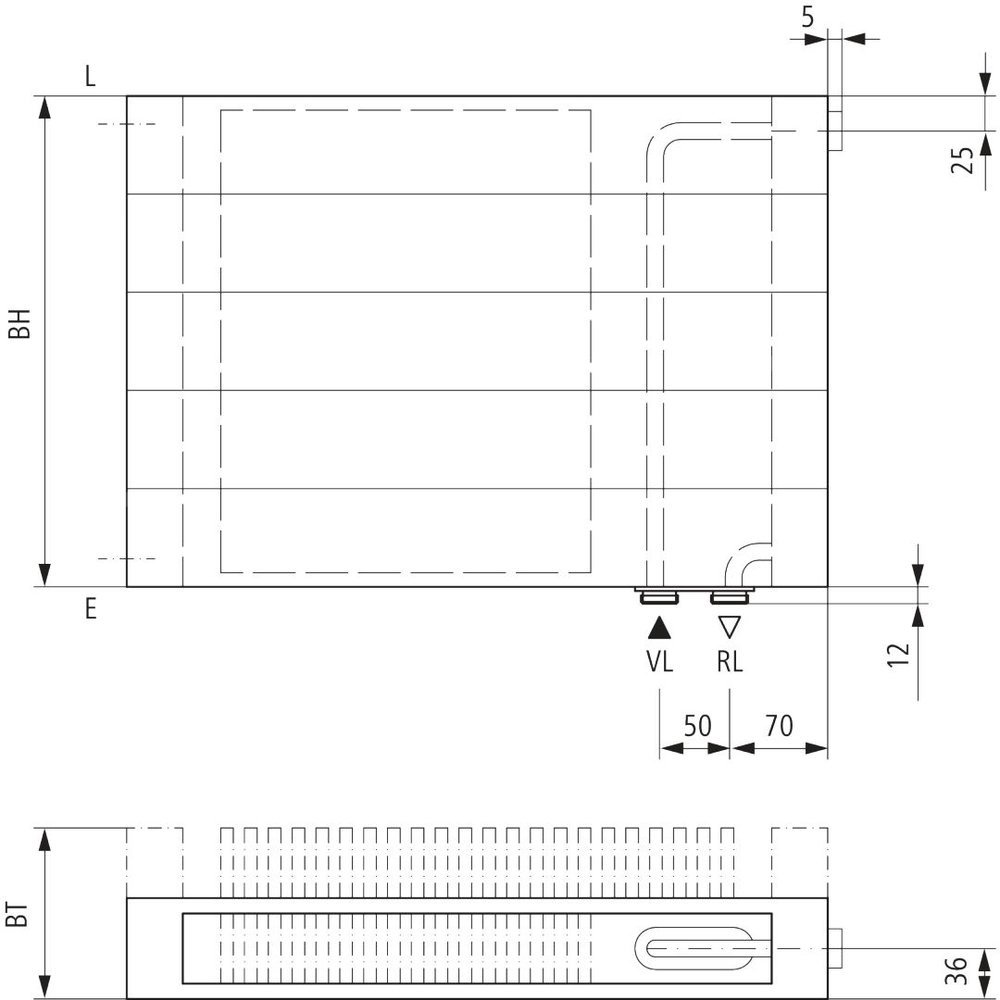
Wysokość [mm]
420
Głębokość [mm]
72
Długość [mm]
4600
Moc cieplna EN 442 20°C - 75/65 [W]
3422
Rodzaj
20
Kolor
Biały
Długość towaru w centymetrach
470
Wysokość towaru w centymetrach
44.5
Szerokość towaru w centymetrach
9.2
Strona www producenta
www.kermi.pl
Zapytaj o produkt




















