Dodaj produkty podając kody
Dodaj plik CSV
Wpisz kody produktów, które chcesz zbiorczo dodać do koszyka (po przecinku, ze spacją lub od nowej linijki).
Powtórzenie wielokrotnie kodu, doda ten towar tyle razy ile razy występuje.
Konkretne i proste wzornictwo, płaskie wykonanie, duża moc i dowolność pod względem proporcji i wymiarów.
Wyjątkowa technika zaworowa Kermi dająca odczuwalną oszczędność energii. Estetyczny wygląd, skrócony czas montażu i prosta instalacja.
Dyskretne, estetyczne i funkcjonalne rozwiązanie koncepcji architektonicznej.
Pionowe, smukłe wykonanie – estetycznie wykończone za pomocą standardowo montowanej bocznej osłony lub idealne dostosowanie w wersji poziomej – z elegancką osłoną lub bez.
Marka
Symbol
29HHV200354002R1K
Seria
Rodzaj towaru
Grzejniki stalowe płytowe
EAN
4051487126383
Kod producenta
HHV200354002R1K
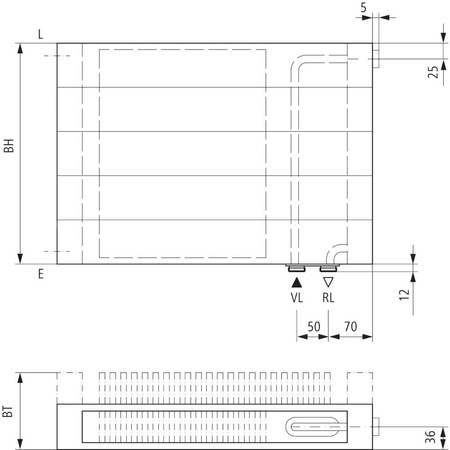
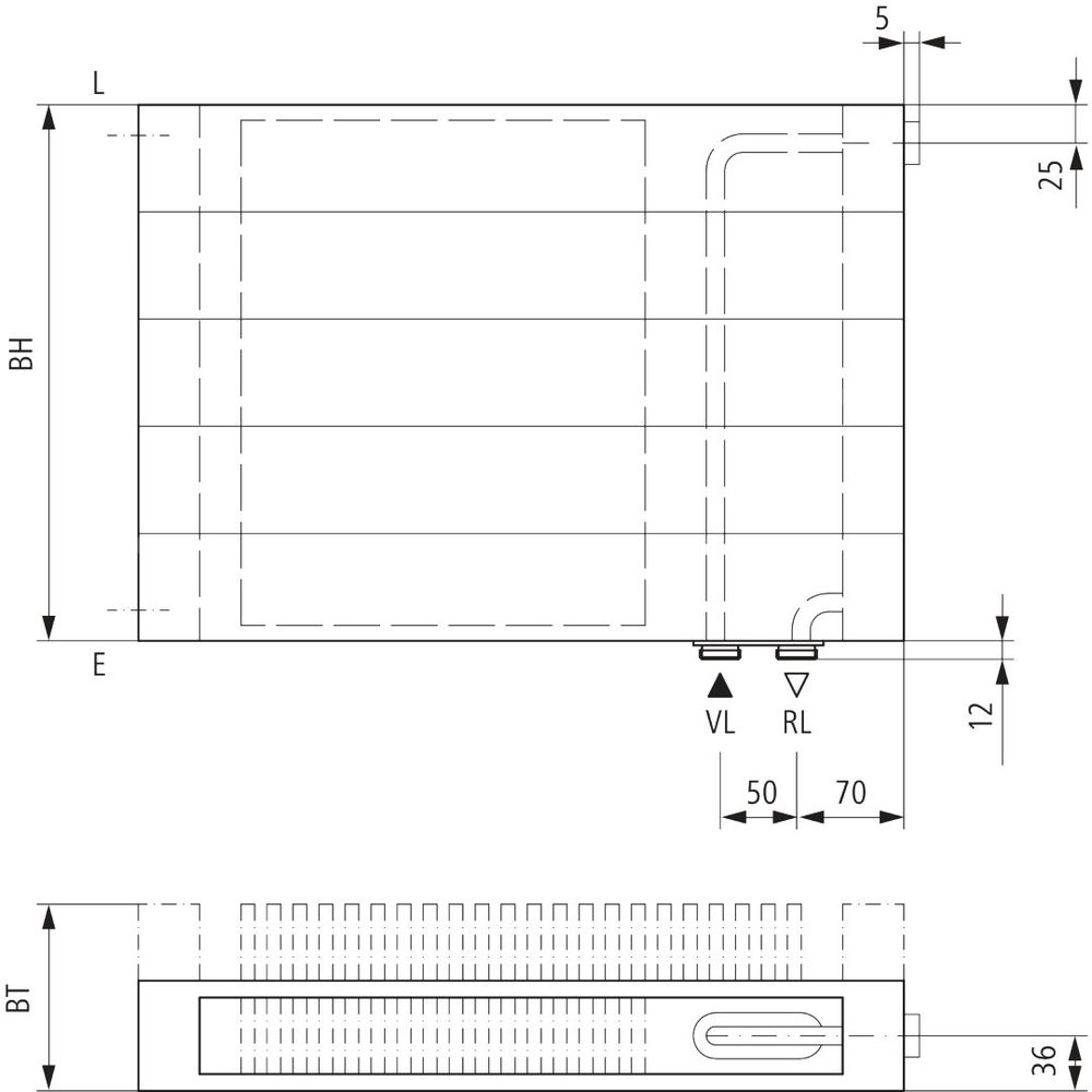
Wysokość [mm]
350
Głębokość [mm]
72
Długość [mm]
4000
Moc cieplna EN 442 20°C - 75/65 [W]
2584
Rodzaj
20
Kolor
Biały
Długość towaru w centymetrach
410
Wysokość towaru w centymetrach
37.5
Szerokość towaru w centymetrach
9.2
Strona www producenta
www.kermi.pl
Zapytaj o produkt












