Dodaj produkty podając kody
Dodaj plik CSV
Wpisz kody produktów, które chcesz zbiorczo dodać do koszyka (po przecinku, ze spacją lub od nowej linijki).
Powtórzenie wielokrotnie kodu, doda ten towar tyle razy ile razy występuje.
Konkretne i proste wzornictwo, płaskie wykonanie, duża moc i dowolność pod względem proporcji i wymiarów.
Wyjątkowa technika zaworowa Kermi dająca odczuwalną oszczędność energii. Estetyczny wygląd, skrócony czas montażu i prosta instalacja.
Dyskretne, estetyczne i funkcjonalne rozwiązanie koncepcji architektonicznej.
Pionowe, smukłe wykonanie – estetycznie wykończone za pomocą standardowo montowanej bocznej osłony lub idealne dostosowanie w wersji poziomej – z elegancką osłoną lub bez.
Marka
Symbol
29HHV201191202R1K
Seria
Rodzaj towaru
Grzejniki stalowe płytowe
EAN
4051487133305
Kod producenta
HHV201191202R1K
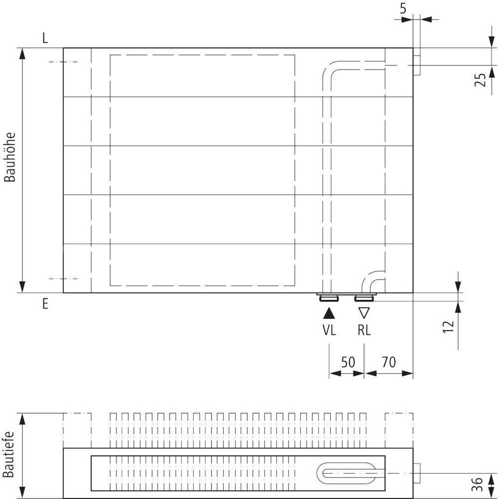
Wysokość [mm]
1190
Głębokość [mm]
72
Długość [mm]
1200
Moc cieplna EN 442 20°C - 75/65 [W]
2113
Rodzaj
20
Kolor
Biały
Długość towaru w centymetrach
130
Wysokość towaru w centymetrach
121.5
Szerokość towaru w centymetrach
9.2
Strona www producenta
www.kermi.pl
Zapytaj o produkt











