Dodaj produkty podając kody
Dodaj plik CSV
Wpisz kody produktów, które chcesz zbiorczo dodać do koszyka (po przecinku, ze spacją lub od nowej linijki).
Powtórzenie wielokrotnie kodu, doda ten towar tyle razy ile razy występuje.
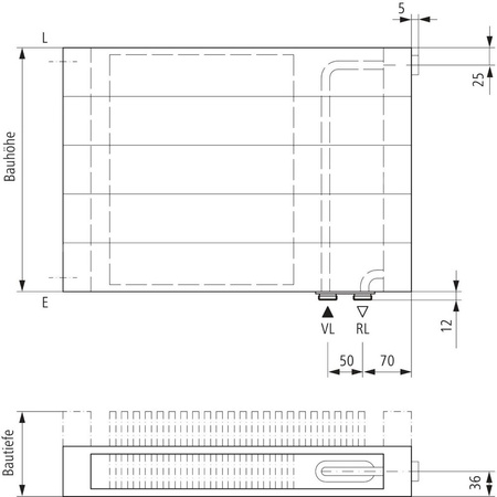
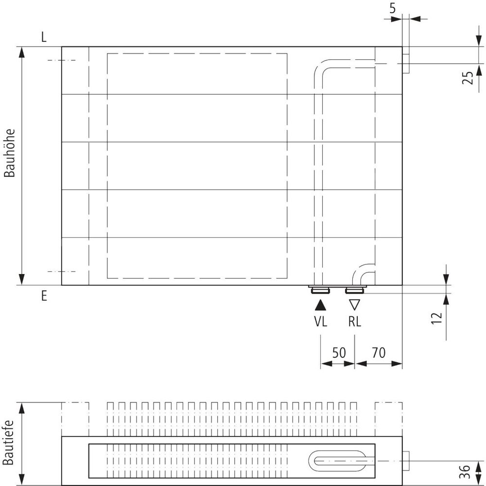
Marka
Kod IK
Symbol
29HHV201123602R1K
Rodzaj towaru
Grzejniki stalowe płytowe
EAN
4037486654829
Kod producenta
HHV201123602R1K
Strona www producenta
www.kermi.pl
Zapytaj o produkt
Napisz swoją opinię











