Dodaj produkty podając kody
Dodaj plik CSV
Wpisz kody produktów, które chcesz zbiorczo dodać do koszyka (po przecinku, ze spacją lub od nowej linijki).
Powtórzenie wielokrotnie kodu, doda ten towar tyle razy ile razy występuje.
Marka
Symbol
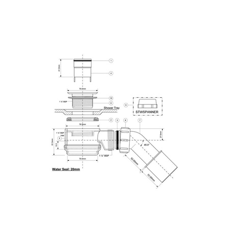
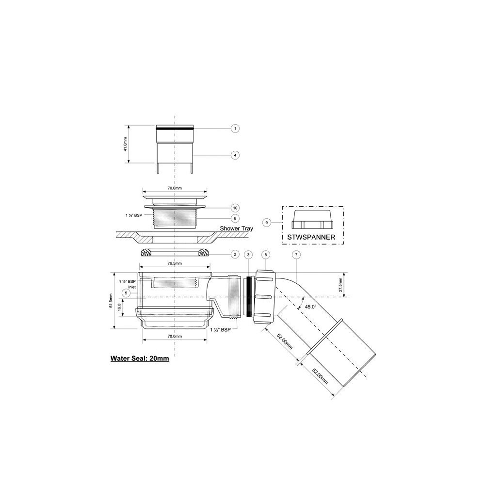
CECD-HC26-65
Rodzaj towaru
Syfony
EAN
5036484054081
Kod producenta
CD-HC26-65
Strona www producenta
www.mcalpine.pl
Zapytaj o produkt








